Pestszentlőrinc és Pestszentimre barátságos közössége

Eladó lakások Budapest 18. kerület

Eladó Tégla lakás Bókaytelep

Budapest XVIII. kerület, Bókaytelep
Eladó Tégla lakás
Üllői út

  • Ajánlat:Eladó
  • Tipus:Tégla lakás
  • Ár:79.000.000 Ft
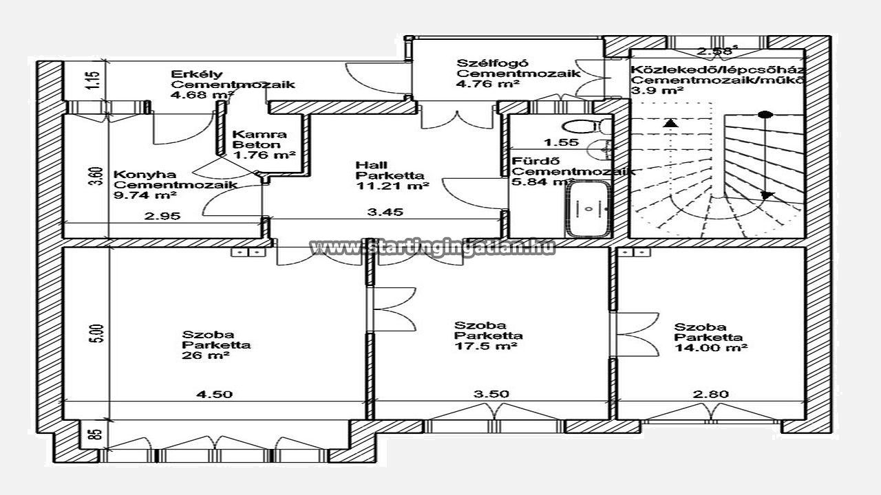
  • Lakóterület:117 m2
  • Emelet:1. emelet
  • Épület szintjei:2 szintes
  • Erkély:4 m2
  • Telek mérete:448 m2
  • Szobák:3 szoba
  • Állapot:Felújítandó
  • Fűtés:Konvektor
  • Komfort:Összkomfort
  • Villany:van
  • Víz:van
  • Gáz:van
  • Csatorna:van
  • Hivatkozási szám:E-XVIII-10-484
  • Érdeklődni:+36-20-852-5207

Leírás, további információk



Azonosító:E-XVIII-10-484

A Budapest egyik kiemelten frekventált részén, a XVIII. kerület Üllő úton kínálunk megvételre egy különleges hangulatú, 117 m²-es, első emeleti, háromszobás téglaépítésű társasházi lakást, mely elosztása miatt két külön bejáratú lakásként is funkcionálhat. Az ingatlan 1938 óta ugyanannak a családnak a tulajdonában áll — ritka érték és valódi történettel rendelkező otthon.
A kétszintes társasház egy 448 m²-es telken helyezkedik el. Az udvarban mindössze egy másik lakás található, így a lakók nyugodt, bensőséges környezetet élvezhetnek, a bejárat pedig csak ezzel az egy tulajdonossal közös. A lakás megközelítése kizárólag a tulajdonos által használt lépcsőházból történik, ami tovább erősíti a privát, szeparált életteret.
Az ingatlan egyik legnagyobb értéke a tágas, világos térkialakítás. A nagyméretű előszobából nyílik a nappali, ahonnan jobbra és balra egy-egy külön bejáratú szoba érhető el. A helyiségek napfényesek, jól alakíthatók, az erkélyről pedig kellemes parkra néző kilátás nyílik. A konyhából és a kamrából egy belső erkélyre léphetünk ki, amely praktikus és hangulatos kiegészítője a lakásnak. A fürdőszoba kádas kialakítású.
A lakás teljes körű felújítást igényel, ugyanakkor éppen ez adja meg benne a valódi lehetőséget: új tulajdonosa saját elképzelései szerint alakíthatja ki álmai otthonát vagy akár egy értékálló befektetést. A nagy alapterület, a jól variálható elrendezés és a kiváló benapozottság számos átalakítási koncepció megvalósítását teszi lehetővé.
Az ingatlan minden közművel rendelkezik, továbbá egy 25 m²-es pince is tartozik hozzá, amely extra tárolási lehetőséget biztosít.
Elhelyezkedése valóban egyedi: központi fekvésének köszönhetően önkormányzat, okmányiroda, orvosi rendelő, valamint villamos- és buszmegállók néhány perc sétával elérhetők. A kiváló infrastruktúra és a park közelsége egyszerre biztosít kényelmet és élhető környezetet.
Ez a lakás ideális választás azok számára, akik értékelik a múlt hangulatát, a nagy tereket és egy kivételes lokációban rejlő hosszú távú lehetőségeket.

Azon kedves ügyfelek, akik általunk találják meg leendő otthonukat, az ügyvédünk által szerkesztett adásvételi szerződés díjából kedvezményben részesülnek.


Kapcsolatfelvétel

Írjon tanácsadói segítségért nekünk:

Üzenetem elküldésével elfogadom az Általános Szerződési Feltételekben foglaltakat

Alulírott, a checkbox bepipálásával - az Általános Adatvédelmi Rendelet (GDPR) 6. cikk (1) bekezdés b) pontja, továbbá a 7. cikk rendelkezése alapján - tudomásul veszem, hogy az adatkezelő a most megadott személyes adataimat a GDPR, továbbá a saját adatkezelési tájékoztatójának feltételei szerint kezelheti.